建築実例住まいの実りを育むパッシブデザイン
暮らしに余白を生むライトコート

グリーンハウザー
建物南側にライトコートを配し、吹き抜けを中心に光と風を巡らせたパッシブデザインの住まい。太陽のぬくもりやそよ風を感じながら、室内は一年を通して穏やかな空気に包まれる。太陽光発電を搭載し、長期優良住宅認定、耐震等級3・断熱等級6の高断熱高気密仕様を実現。GX志向型住宅基準にも適合し、家族が自然と集う心地よい日常を叶えた。
外観
塗り壁と金属サイディングを組み合わせた、端正で上質な外観。板張りのアクセントが表情を添える。太陽光発電10.56kWを搭載し、省エネ性にも配慮した。
リビング
延床面積29.80坪とコンパクトながら、吹き抜けと天井の抑揚で視線が伸び、広がりを感じさせる。2階まで伸びる無垢の丸柱が、空間の象徴として家族の時間を見守る。
ダイニング
木の幹に見立てた丸柱が印象的。ツリーハウスのように枝葉が個室へ広がり、家族が集う巣となる象徴的存在。洗面室に光を届けるガラスブロックも◎。
吹き抜け
吹き抜けとライトコートが光と風を導くパッシブ設計。高断熱・高耐震の2×6工法により、性能と意匠を両立。自然の力を生かした、心地よい住空間に。
キッチン
キッチンからリビングを見渡す視点。階段一段目は、家族が自然と腰掛ける“止まり木”のようなベンチに。視線と気配が緩やかにつながる。
ベッドルーム
小上がり畳を備え、寝室としても使える2階のフリースペース。2階には他、遮音ドア付きのゲーミングルームも設け、それぞれが自分時間を心地よく楽しめる。
玄関
ガラス戸越しに奥まで見渡せる玄関。帰宅時や来客時も家族の気配が自然と伝わり、住まい全体のつながりを感じられる、開放感のある設え。
中庭
外部の視線を遮るライトコート。リビングと緩やかにつながり、プール遊びや縄跳び、テントを張ったガーデンキャンプ、BBQなど、家族だけの時間を穏やかに楽しめる。
洗面脱衣室・洗面化粧台
上質な洗面を備えたドライルーム。グレーと木の造作棚が調和し、意匠性と使いやすさを両立。アイアンバー付きで室内干しにも対応し、奥には浴室が続く。
トイレ
質感や色使いにこだわったトイレ空間。照明が生む陰影が落ち着いた雰囲気を演出する。左手前の開口は、ペット用トイレを想定したさりげない工夫。
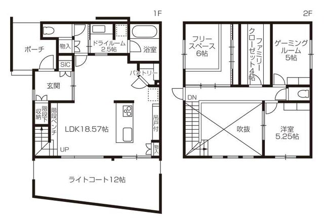
間取り図
COMMENT
私たちがつくりました!
家族が自然と集い、それぞれの時間も大切にできる住まい「ファミリーネスト」をテーマに、共働き家族が無理なく、楽しく暮らせることを大切にしました。カーテンレスなライトコートや引き算の設計によって、家族の時間と“おうち時間”が自然と“住実”する住まいに。日々の心地よさが積み重なる暮らしを実現しています。
設計・岩渕春奈
DATA
本体価格(建築当時)
3,500〜4,000万円
敷地面積
181.30㎡(54.84坪)
延床面積
98.54㎡(29.80坪)
工法・構造
2×6工法
階数
2階建て
竣工年
2025年
外観テイスト
シンプルモダン・モダン
内観テイスト
シンプルモダン・モダン
こだわり
新築、2階建て、室内の様子が見えない、ペットと暮らす、長期優良住宅、断熱等級6、耐震等級3、熱交換換気、アイランドキッチン、吹き抜け、中庭、アウトドアリビング、ランドリールーム・サンルーム、太陽光発電システム、2×4、2×6工法、UA値:0.41、BEI:0.57

この家を建てたのは…

グリーンハウザー
宮城県仙台市宮城野区中野字上小袋田18-1

この会社の他の実例